Technologie
Beim 3D-Laserscanning wird die Umgebung mit einem Laserscanner abgetastet, wodurch eine 3D-Punktwolke entsteht. Die Punktwolke kann in einem kostenlosen Programm betrachtet werden.
Unsere Dienstleistungen
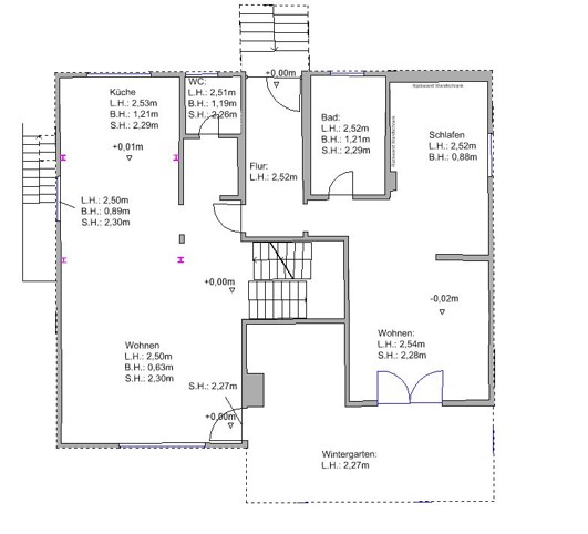
- Erstellung von Grundrissen, Schnitten und Ansichten als Planungsgrundlage für Umbaumaßnahmen
- Bestandserfassung von denkmalgeschützte Objekte
- Ebenheitsprüfungen
- Ermittlung von Mietflächen gemäß Wohnflächenverordnung
- Erstellung von BIM Projekten
Vorteile von 3D-Laserscanning gegenüber der herkömmlichen Vermessung
- Berührungslose Vermessung und somit keine Produktionsunterbrechungen
- Aufzumessende Objekte müssen nicht direkt zugänglich sein
- Bis zu 1 Mio. Messpunkte pro Sekunde
- Es kann in der Punktwolke gemessen werden. Somit können auch nachträglich noch ohne weiteren Außendiensteinsatz zusätzliche Messungen durchgeführt werden
- maßstäbliche Dokumentation von denkmalgeschützten Objekten.


